Inicio
Empresa
Proyectos
Blog
Homs
Contacto
Inicio
Empresa
Proyectos
Blog
Homs
Contacto
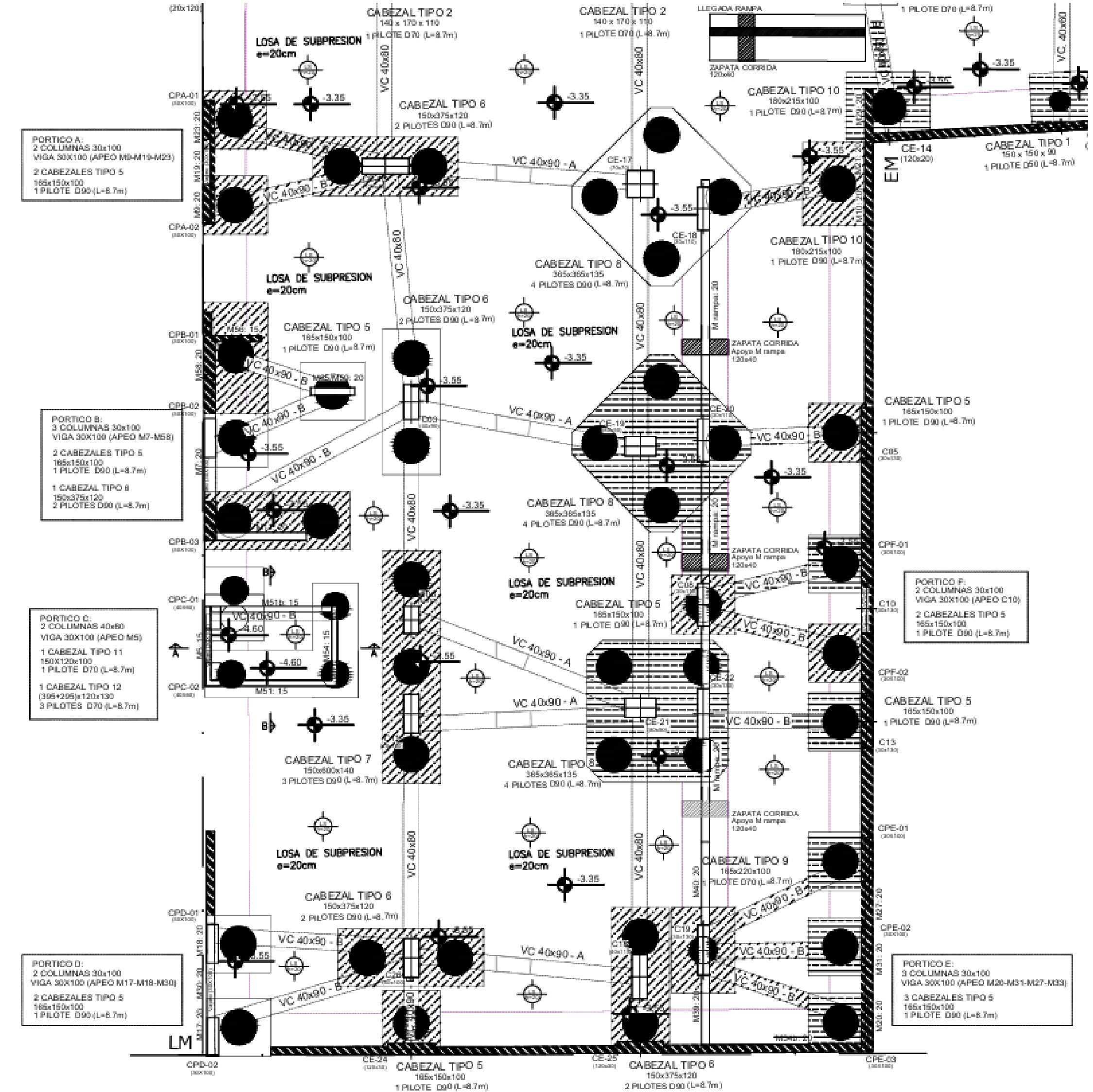
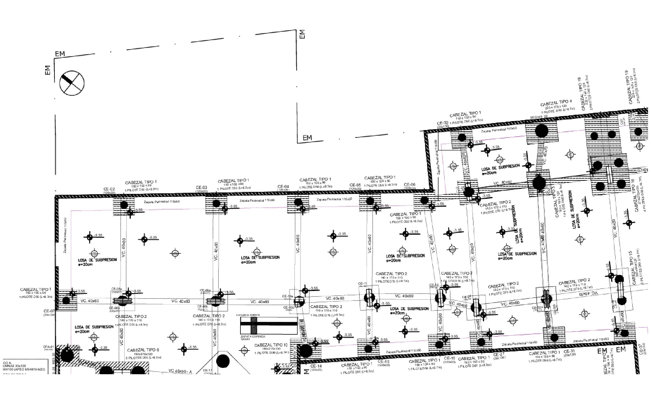
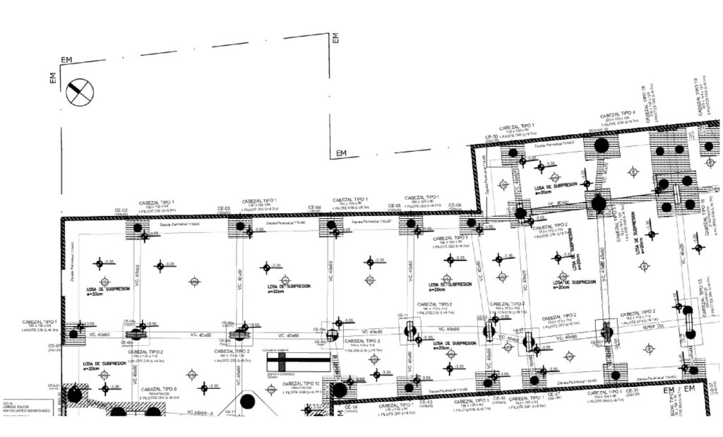
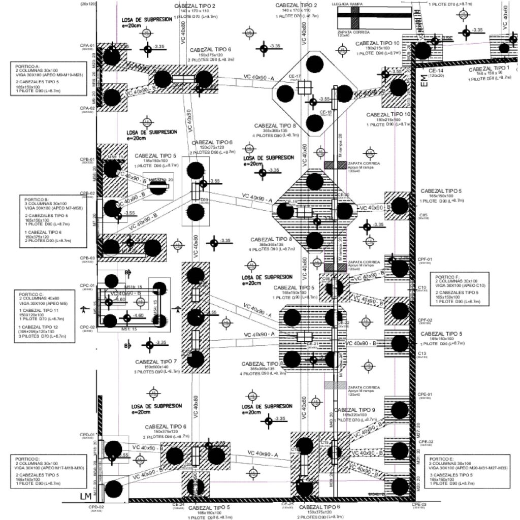
AVANCE DE OBRA
Septiembre
2025
PILOTAJE GLOBAL
0
%
CABEZALES GLOBAL
0
%
CABEZALES ZONA VELASCO
0
%
CABEZALES ZONA TRANSICIÓN
0
%
CABEZALES ZONA DARWIN
0
%
COLUMNAS MEDIANERAS GLOBAL
0
%
SUBMURACION GLOBAL
0
%
APUNTALAMIENTO MEDIANERA VELASCO
0
%
Hablá con Baalbek